Rénovation d'un séjour haussmannien · 40 m² · Paris
Projet Insidy
Appartement haussmannien parisien rénové : élégance intemporelle et modernité subtile
Paris (75)
 
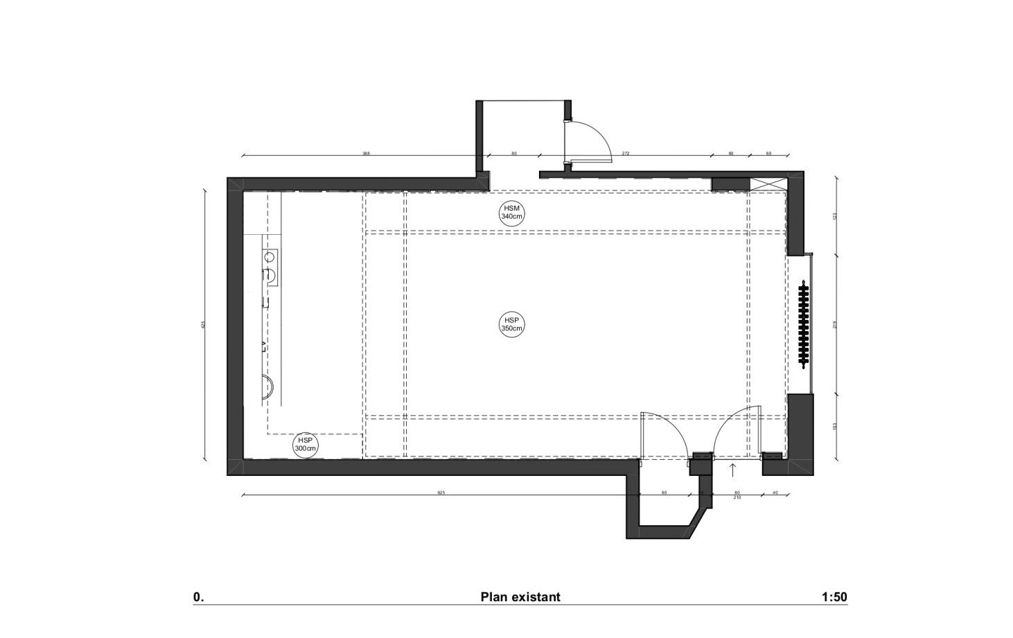
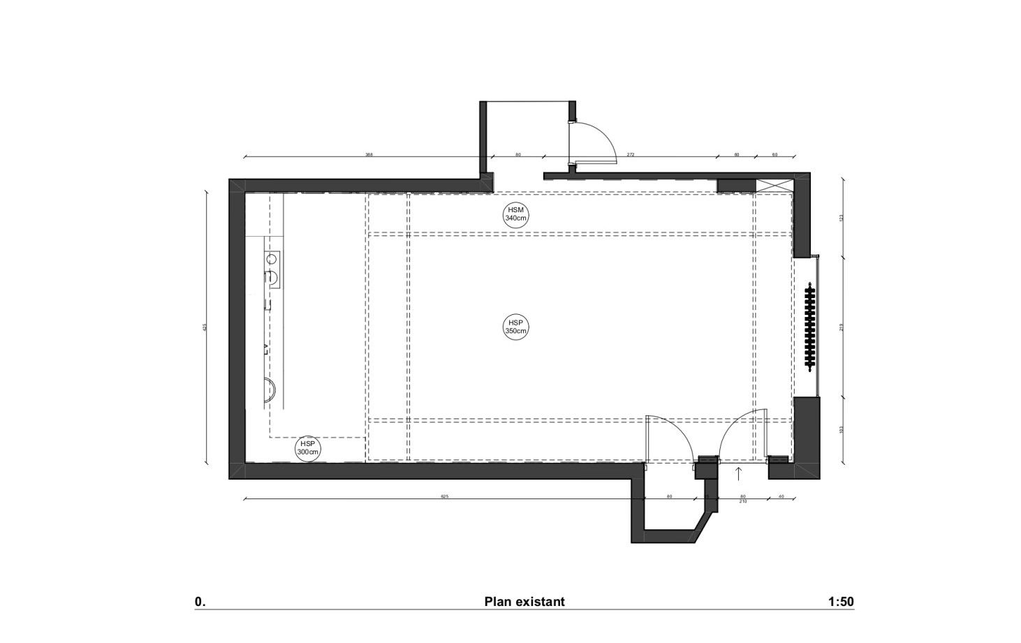
Dans cet appartement haussmannien parisien de 40 m², l'aménagement et la décoration révèlent une renaissance respectueuse du patrimoine. Ce projet de transformation préserve le caractère historique tout en insufflant une modernité subtile et fonctionnelle, créant un équilibre parfait entre tradition et contemporain.
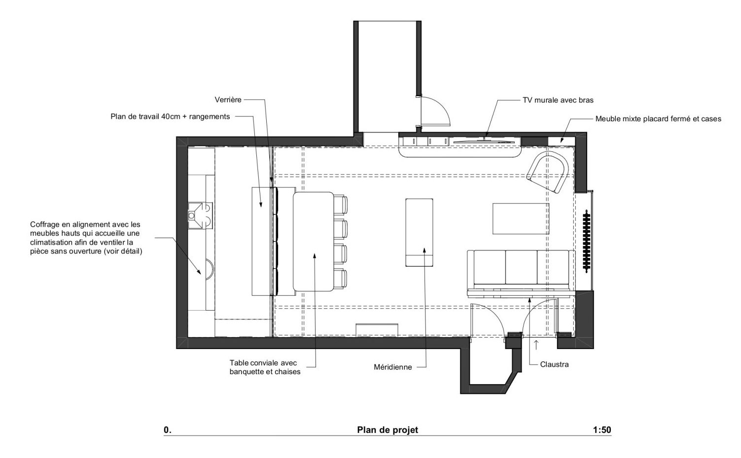
L'entrée structure cette métamorphose grâce à une claustra délicate qui délimite l'espace sans l'enfermer. Cette solution d'aménagement préserve l'ouverture sur le séjour tout en organisant les volumes avec élégance. La verrière, dans la continuité du style haussmannien, sépare cuisine et salon tout en réaffirmant leur lien. Elle laisse filtrer la lumière naturelle et crée une fluidité visuelle, unissant anciennes moulures et lignes contemporaines.
Les éléments architecturaux d'origine témoignent du savoir-faire haussmannien : soubassements préservés, moulures sublimées et parquet à chevrons mis en valeur. Ces détails patrimoniaux dialoguent harmonieusement avec des ajouts contemporains soigneusement choisis. La cuisine épurée, la banquette côté salle à manger et la méridienne salon apportent modernité sans altérer la chaleur du cadre historique.
La sélection matériaux révèle une recherche d'équilibre raffinée. Le chêne, en écho au parquet d'époque, insuffle caractère et chaleur. Verre et métal de la verrière créent un contraste élégant avec le bois ancestral. Le marbre, clin d'œil au style haussmannien, s'oppose avec finesse aux matériaux contemporains, tandis que les assises en tissu et cuir adoucissent l'ambiance.
La palette coloriste audacieuse personnalise cet espace parisien. Le bleu céladon, teinte fraîche, se réchauffe de touches rouille et s'illumine d'accents ocre. Le blanc d'origine, ancré dans l'histoire de l'appartement, se renforce de touches noires pour affirmer une esthétique résolument moderne.
Cette rénovation haussmannienne illustre parfaitement la rencontre entre passé et présent, créant un espace intemporel où chaque élément dialogue harmonieusement.
ACCOMPAGNEMENT
Aménagement déco
PROGRAMME
Aménagement et décoration d'une pièce de vie
SURFACE
40 M²
LIVRAISON
2022




 
 
 
 
 
 















