petit chateau
Charenton-le-Pont, Val-de-Marne (94)
 
ACCOMPAGNEMENT
mobilier sur-mesure
PROGRAMME
création de mobilier sur-mesure (dressing + meuble tv)
SURFACE
50 M²
LIVRAISON
2021
Dans ce projet, l’essence même de la transformation réside dans la création de menuiseries sur mesure, pensée pour métamorphoser cet appartement parisien, sans qu'aucun travail de rénovation majeur ne soit nécessaire. L'objectif était simple : maximiser l'espace tout en apportant une touche d'originalité et de caractère à un intérieur initialement dépourvu de rangements fonctionnels.
Le salon, pièce de vie centrale, bénéficie d'une première intervention subtile mais marquante : un meuble TV intégré qui s’accompagne d'une petite claustra, créant une séparation légère entre l'entrée et le séjour. Cette solution allie praticité et esthétisme, tout en offrant une ouverture fluide entre les différentes zones de l'appartement. Une bibliothèque sur mesure a été imaginée pour exploiter un mur difficilement aménageable, transformant cet espace en un allié à la fois décoratif et fonctionnel. L’audacieuse teinte de vert profond, choisie pour le mobilier, contraste harmonieusement avec les murs blancs et ajoute une profondeur chaleureuse à l'espace. Associé à du bois, le vert donne une atmosphère sophistiquée, tout en restant intime et accueillante.
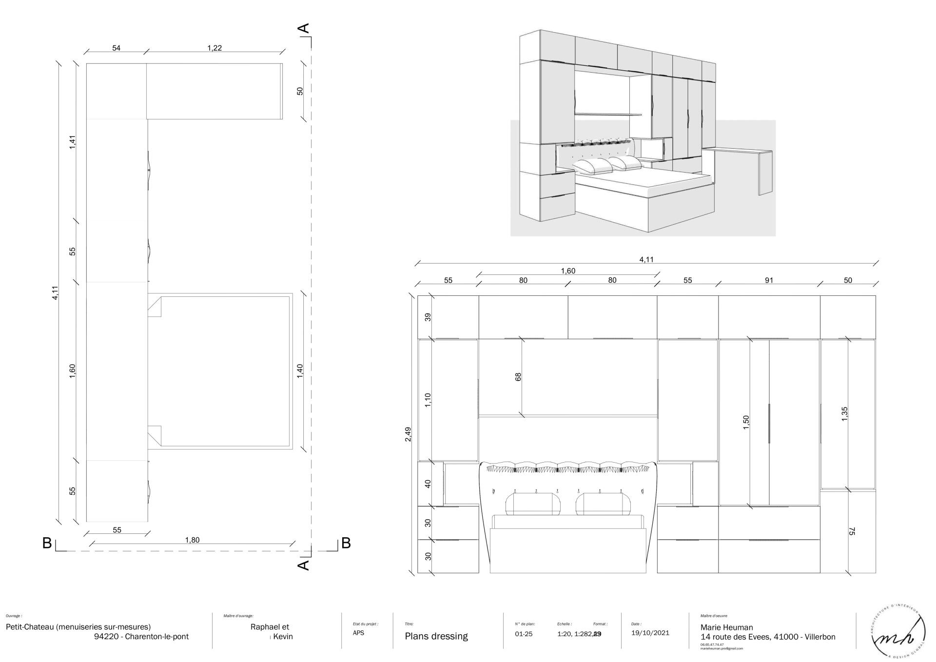
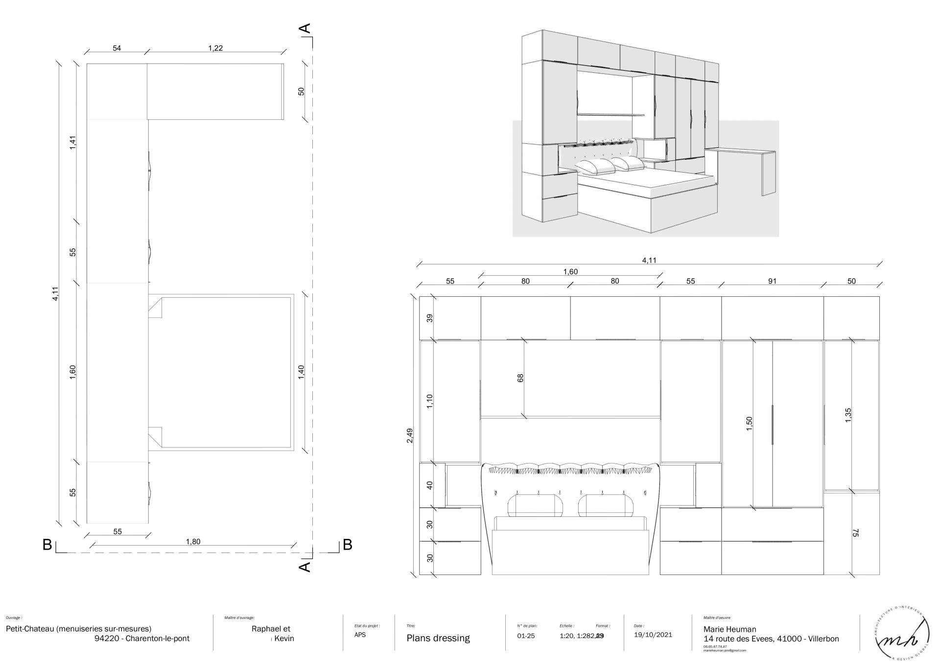
Dans la chambre, où les rangements faisaient cruellement défaut, un dressing sur mesure a été conçu pour s’intégrer parfaitement autour de la tête de lit. Ce meuble astucieux ne se contente pas de maximiser l’espace : il fait corps avec la pièce, alliant fonctionnalité et design. Un bureau, parfaitement intégré à l’ensemble, a également trouvé sa place, apportant une dimension pratique à cette chambre.
Chaque solution a été pensée pour répondre aux besoins quotidiens des occupants tout en respectant l’harmonie de l’espace. L’intervention, bien que limitée à la création de mobilier, a permis de repenser totalement l’utilisation des espaces, en apportant une touche chaleureuse et personnalisée. Ce projet démontre que parfois, la simplicité d’une menuiserie sur mesure peut transformer un intérieur, alliant confort, praticité et design, sans besoin de gros travaux. Chaque pièce, chaque meuble a été conçu pour offrir un cadre de vie à la fois esthétique et fonctionnel, parfaitement adapté aux aspirations des occupants.




 
 
 
 




















