Le 20
Le style Art déco s'impose comme une réponse idéale aux exigences de confort et de raffinement d'un hôtel haut de gamme, alliant élégance intemporelle et fonctionnalité.
Le hall d'accueil a été pensé pour offrir un espace convivial et reposant. Au centre, une banquette de repos, disposée face à l'ascenseur, complète les assises disponibles. Le comptoir d'accueil, ainsi que le mur qui le met en valeur, ont été conçus sur mesure pour affirmer l'identité de la réception. Les colonnes se distinguent par un papier peint à effet marbre, ajoutant une touche luxueuse. Un sol en terrazzo, mêlant des nuances de blanc, bordeaux et bleu, confère une harmonie visuelle à l'ensemble. Pour accentuer la profondeur de l'espace, un plafond miroir a été privilégié, offrant une impression d'infini.
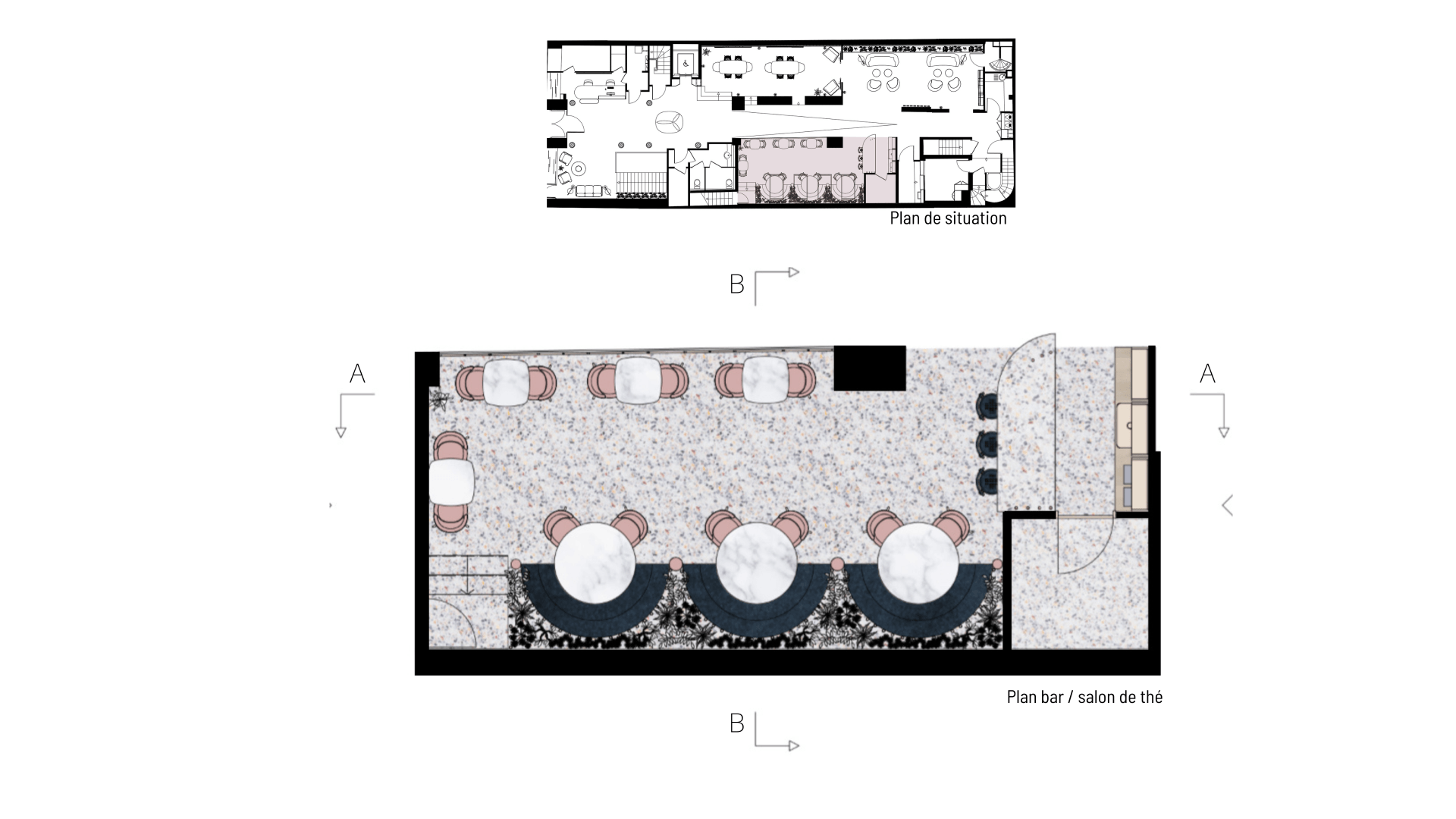
L'espace bar, baigné de lumière grâce à sa grande hauteur sous plafond, mise sur la clarté avec un revêtement immaculé : sol, murs et plafond blancs. L'aménagement a été pensé pour accueillir confortablement des groupes, avec des banquettes généreuses et enveloppantes, accompagnées de tables rondes favorisant les échanges tout en préservant l'intimité. Le bar et ses étagères suspendues, adaptées à la hauteur sous plafond, ont été spécialement conçues pour compléter l'esthétique de l'espace.
La salle de réunion et le salon de lecture se distinguent par une atmosphère chaleureuse, créée par des matériaux nobles et des teintes enveloppantes. Une attention particulière a été portée au design, avec une bibliothèque sur mesure dans le salon de lecture et un habillage mural travaillé dans la salle de réunion. L'absence de fenêtres dans ces espaces a été compensée par l'introduction de végétation. Une paroi en verre fumé dissimule discrètement des plantes dans le salon de lecture, apportant une note naturelle. L'ensemble se distingue par une ambiance tamisée et feutrée, propice à la concentration et à la détente.


























