Temple
Localisation : Paris (75)
Date : 2022
Superficie : 30 m²
Prestation : Formule conception
Cet appartement T2 nécessitait - en vue d'une mise en location - un réagencement des espaces et une bonne rénovation.
L'idée était de le rendre fonctionnel, attrayant et de lui créer une identité et de jolies prestations afin de le démarquer sur le marché de la location.
Pour ce projet, nous sommes partis sur un style rétro, décalé et coloré afin de viser une cible plutôt jeune.
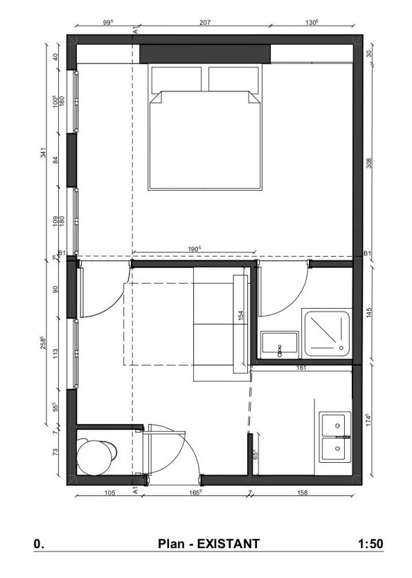
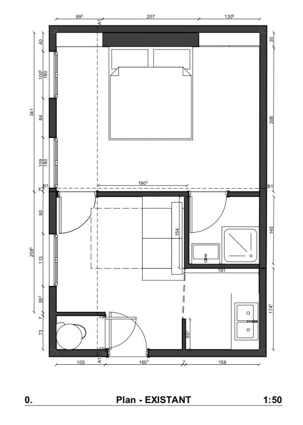
Les volumes de départ étaient mal répartis, grande chambre sans rangement, petit salon mal agencé ; petite cuisine peu fonctionnelle, grande salle de bains. Afin de mieux répartir les espaces nous avons cassé complètement la salle de bain existante qui empiétait sur le séjour au profit d'un séjour plus ouvert.
Une cuisine en longueur a été pensée avec un maximum de rangements et d'équipements. Le salon se veut maintenant plus conviviale avec ce canapé qui nous accueille dès l'entrée dans l'appartement. Une petite bibliothèque sur-mesure a été conçue pour apporter du rangement à l'espace.
La chambre accueille désormais la salle de bain et un dressing de part et d'autre du lit central. Une tête de lit trône au milieu de la pièce où une niche y est intégrée en guise de table de chevet. C'est une vraie suite parentale qu'offre maintenant l'appartement.




















