Insidy
Localisation : Paris (75)
Date : 2022
Surface : 38m²
Prestation : Aménagement & décoration
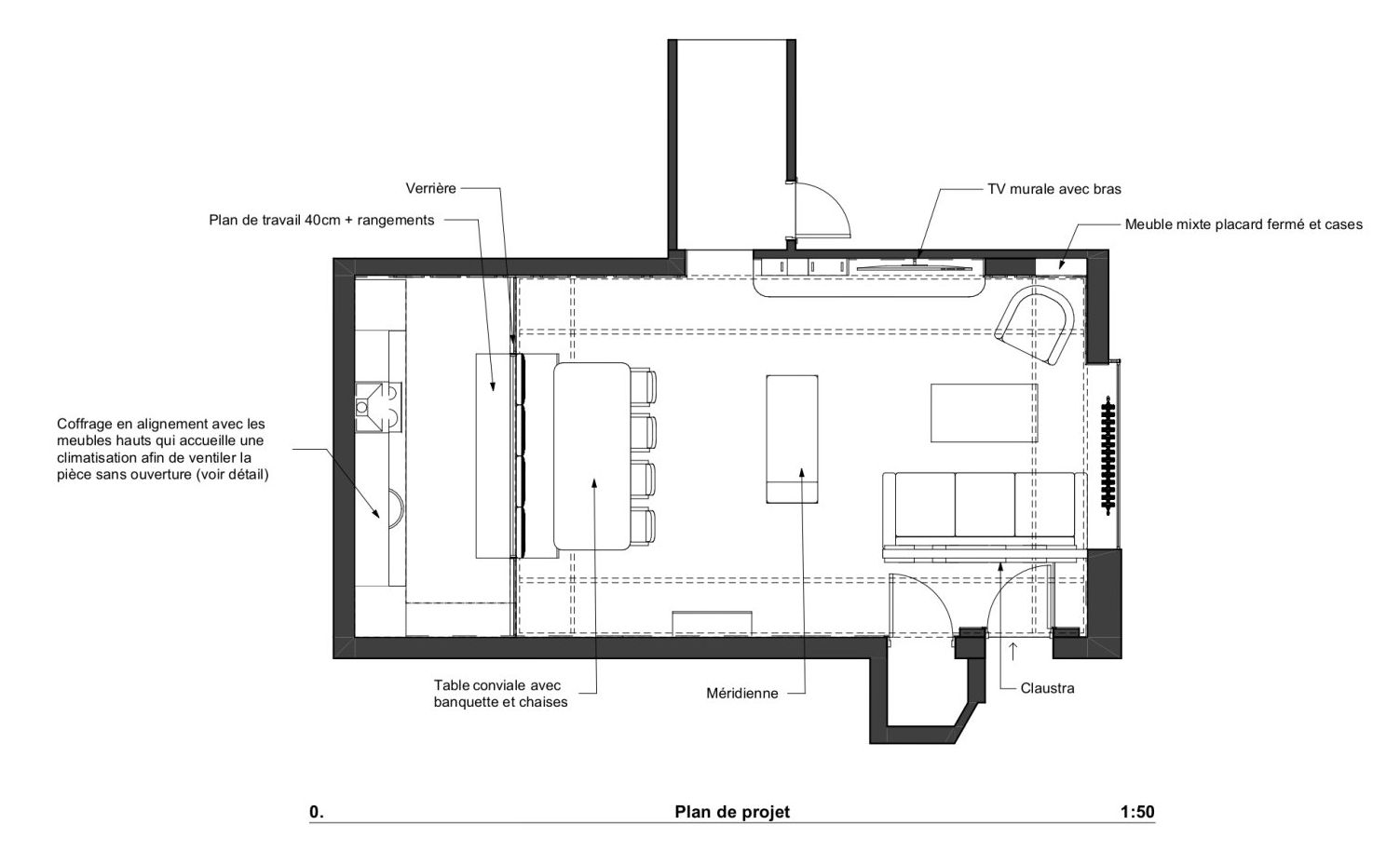
Pour cette pièce de vie, l'approche adoptée visait à créer un espace à la fois fonctionnel, optimisé et convivial, en s'appuyant sur des éléments architecturaux forts pour délimiter subtilement les différentes zones sans les cloisonner complètement.
Une claustra a été installée afin de structurer l'entrée tout en offrant un aperçu sur le séjour. La verrière, quant à elle, sépare la cuisine du séjour tout en se mariant aux moulures et coffrages existants. Cette verrière, en écho au modèle déjà présent dans l'appartement, permet de maximiser la luminosité tout en respectant l'identité visuelle du lieu.
Le caractère haussmannien de l'appartement a été mis en valeur par les soubassements et les moulures, en préservant le parquet à chevrons, et en accentuant la hauteur sous plafond. Ces éléments d'origine ont été harmonieusement associés à des touches contemporaines, telles que la verrière, le claustra, une cuisine épurée et minimaliste, une banquette côté salle à manger et une méridienne dans le salon.
Pour les matériaux, le chêne a été choisi pour rappeler le parquet et apporter de la chaleur à l'espace. Le verre et le métal ont été utilisés pour créer un contraste élégant, tandis que le marbre, clin d'œil au style haussmannien, s'oppose au bois. Les assises, en tissu et en cuir, adoucissent l'ensemble et ajoutent un confort visuel et tactile.
Concernant les couleurs, une palette audacieuse a été sélectionnée afin d'apporter du caractère à la pièce. Le bleu céladon, teinte froide, est réchauffé par des touches de rouille et éclairé par des accents ocre. Le blanc d'origine a été conservé en base, accompagné de touches de noir pour renforcer les contrastes et ancrer l'espace dans une esthétique contemporaine.






















